Rokin 38
Description
HET GEBOUW
Midden in het bruisende centrum van Amsterdam is aan het Rokin dit kantoorgebouw gelegen. Het Rokin is gelegen vanaf de Dam tot aan het Muntplein en kenmerkt zich door z’n brede boulevard en het metrostation van de Noord-Zuidlijn. De straat is ook voorzien van vele winkels en horecagelegenheden met terrassen. Het gebouw ligt op een paar minuten afstand van Amsterdam Centraal Station en ligt tevens nabij het Paleis op de Dam, Magna Plaza, Bijenkorf en diverse hotels w.o. het W-hotel en Krasnapolsky.
Naast het metrostation op het Rokin is een fietsenstalling en parkeergarage gelegen. De parkeergarage biedt plaats aan 293 auto’s. De fietsenstalling biedt plaats aan ongeveer 260 fietsen. Het stallen van een fiets zal de eerste 24 uur gratis zijn.
Features
Lettable floor area
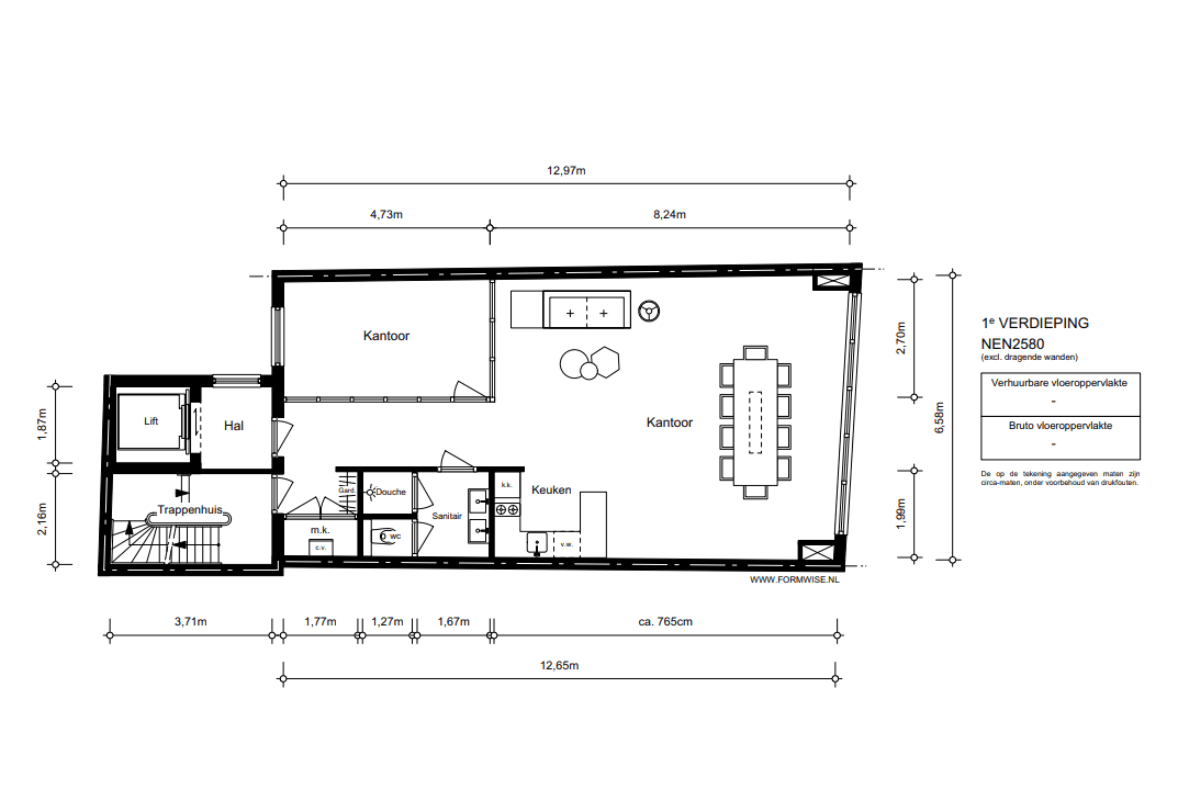
VERHUURBARE OPPERVLAKTE
Het betreft hier ca. 176 m² v.v.o. kantoorruimte verdeeld als volgt:
Unit A gelegen op de 1e verdieping, totaal 88 m²
Unit B gelegen op de 2e verdieping, totaal 88 m²
AANVANGsHUURPRIJS
Unit A: € 37.800,- per jaar te vermeerderen met BTW
Unit B: € 37.800,- per jaar te vermeerderen met BTW
SERVICEKOSTEN
Elke unit heeft zijn eigen meters voor de nutsvoorzieningen, huurder zal zelf contracten met een leverancier afsluiten.
€ 25,- per m² per jaar te vermeerderen met BTW.
Level of delivery
HUURINGANGSDATUM/OPLEVERING
Per direct.
BESTEMMING
De publiek-/privaatrechtelijke bestemming is “Centrum 4” hieronder wordt o.a. verstaan; kantoorruimte en bedrijven.
VOORZIENINGEN
Het kantoorgebouw is o.a. voorzien van:
• Toiletgroepen;
• Pantry voorzieningen;
• Diverse airco units d.m.v. splitunits;
• Parketvloeren;
• Centrale verwarming;
• Liftinstallatie;
• Inbouwverlichting.
HUURPRIJSINDEXERING
De huurprijs wordt jaarlijks geïndexeerd, voor het eerst één jaar na huuringangsdatum, op basis van het prijsindexcijfer volgens de consumentenprijsindex (CPI) reeks Alle Huishoudens (2015 = 100) gepubliceerd door het Centraal Bureau voor de Statistiek (CBS).
HUURTERMIJN
4 (vier) jaren met een verlengingsperiode van 4 (vier) jaren; opzegtermijn 12 (twaalf) maanden.
ZEKERHEIDSSTELLING
Er dient een bankgarantie gesteld te worden ter grootte van een bedrag gelijk aan 3 (drie) maanden huur en servicekosten, te vermeerderen met BTW, afhankelijk van de te verkrijgen kredietinformatie.
VOORWAARDEN & CONDITIES
Er zal gewerkt worden langs de lijnen van een standaard huurcontract, zoals opgesteld door de Raad voor Onroerende Zaken (ROZ), model februari 2015.
BTW
Er zal geopteerd worden voor BTW-belaste verhuur. Huurder dient derhalve voor meer dan 90% BTW-belaste leveringen en diensten blijvend
te leveren.
Accessibility
Auto
Vanaf de ring A10 is het kantoorgebouw via de Wibautstraat, Waterlooplein en Amstel
bereikbaar. Ook is het mogelijk om vanaf de ring A10 via de S116, IJ-tunnel, Waterloopplein en Amstel het kantoorgebouw te bereiken.
Parkeren
Parkeren is mogelijk in de voor het pand gelegen Parkeergarage Rokin en in één van de vele parkeergarages in het Centrum van Amsterdam, bijvoorbeeld: Parkeergarage Kalverstraat, Parkeergarage The Bank of Parkeergarage Stopera Amsterdam.
Openbaar vervoer
Voor de deur van het kantoorgebouw is metrostation Rokin waar iedere 6 minuten de Noord-Zuidlijn vertrekt. Tevens stoppen de tramlijnen; 4, 14 en 24 op het Rokin. Al deze verbindingen gaan rechtstreeks naar Amsterdam Centraal.


