Watertorenplein 2A
Description
HET GEBOUW
Deze unieke bedrijfsruimte is gevestigd in het Rijkmonumentale Magazijngebouw uit 1907, gelegen in Amsterdam. De ruimte maakt onderdeel uit van een karakteristiek en historisch pand met een rijke industriële achtergrond, waarin authentieke details en een robuuste uitstraling samenkomen. De monumentale status van het gebouw onderstreept het bijzondere karakter en zorgt voor een onderscheidende en representatieve werkomgeving.
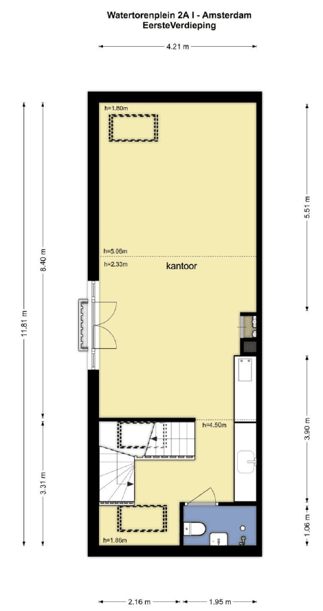
De bedrijfsruimte heeft een oppervlakte van circa 66,50 m² v.v.o. en is gesitueerd op zowel de eerste als de tweede verdieping. Het is geschikt voor diverse zakelijke doeleinden, zoals kantoor-, studio-of creatieve werkruimte.
De omgeving kenmerkt zich door een groene, rustige en duurzame opzet. Op loopafstand bevindt zich het populaire Westerpark. Daarnaast zijn in de directe nabijheid diverse voorzieningen aanwezig, waaronder restaurants en cafés zoals Café-Restaurant Amsterdam en TonTonClub Amsterdam. Ook culturele hotspots zoals kunstcentrum Fabriquedes Lumièresbevinden zich in de nabije omgeving.
Het terrein is uitstekend bereikbaar per fiets en met het openbaar vervoer. Daarnaast ligt een Q-Park parkeergarage op slechts 2minuten loopafstand. Schiphol is binnen 20 minuten met de auto bereikbaar.
Features
Lettable floor area
INTRODUCTIE
P van den Bosch Real Estate Partners B.V., (hierna: “PVDB“) heeft de exclusieve opdracht gekregen om namens onze opdrachtgever de bedrijfsruimte gelegen aan het Watertorenplein 2-A in Amsterdam te verkopen.
KADASTRALE GEGEVENS
De bedrijfsruimte gelegen op de eerste verdieping + entresol, rechtgevende op het uitsluitende gebruik van de bedrijfsruimte, te (1051 PA) Amsterdam, gelegen aan het Watertorenplein 2-A kadastraal bekend gemeente Amsterdam (Noord Holland), sectie Y, kadastrale aanduiding 3984-A2.
VERKOOPPRIJS
€ 425.000,-kosten koper.
ZAKELIJKE LASTEN
OZB (prijspeil 2025) € 263,08
RIOOL € 185,20
Servicekosten VvE (prijspeil 2025) € 254,00
METRAGE
Oppervlakte: ca. 66,50 m² v.v.o. en 83,6 m² b.v.o.
OPLEVERING
In overleg. Kan spoedig.
Level of delivery
KOSTEN
De kosten verbonden aan de eigendomsoverdracht, hieronder te verstaan de kosten van de overdrachtsbelasting, de koopakte en de transportakte zijn voor rekening van de koper.
ERFPACHT
Het is gelegen op grond van de Gemeente Amsterdam en de daarbij behorende erfpacht is afgekocht tot en met 01-06-2047.
BESTEMMING
De voor Gemengd -6 aangewezen gronden zijn bestemd voor:
a. bedrijven in de categorieën A van de Staat van inrichtingen;
b. kantoren;
c. maatschappelijke dienstverlening inclusief bijbehorende ondergeschikte horeca;
d. galeriën;
e. woningen inclusief ruimten voor praktijk-of vrije beroepsuitoefening aan huis / bedrijf aan huis;
Voor een volledige omschrijving van het bestemmingsplan verwijzen wij derhalve naar www.ruimtelijkeplannen.nl
ZEKERHEIDSSTELLING
Tot meerdere zekerheid voor de nakoming van zijn verplichtingen zal koper een waarborgsom of bankgarantie ter grootte van 10% van het transactiebedrag storten of overhandigen op het rekeningnummer van de betrokken notaris, uiterlijk 14 dagen na het ondertekenen van de koopovereenkomst. De door koper gestelde waarborgsom of bankgarantie zal van rechtswege verbeurd zijn ingeval koper in de nakoming van zijn verplichtingen tekort schiet.
Accessibility
Auto
Het object is uitstekend bereikbaar per auto via de ringweg A10, afslag S103 en S104.
Parkeren
Het is mogelijk om op de openbare weg, bemeterd te parkeren.
Openbaar vervoer
Het openbaar vervoer is uitstekend geregeld. Tramlijn 5 stopt bij de Van Hallstraat en biedt een directe verbinding met de Zuidas en Amstelveen. Bus 21ligt op 1 minuut lopen en hiermee is het Centraal Station binnen 11 minuten te bereiken.
DISCLAIMER
Verkoper en/of haar adviseur staan niet in voor de juistheid of volledigheid van de informatie welke beschikbaar is gesteld in het onderhavige document. De gegadigde zal zich derhalve nimmer beroepen op de onjuistheid of onvolledigheid van de ter beschikking gestelde informatie, noch dat zij niet voldoende in de gelegenheid is gesteld om zich te vergewissen van de juistheid en volledigheid daarvan, noch dat zij niet in de gelegenheid is geweest elk ander onderzoek in de ruimste zin des woords te verrichten.
Verkoper behoudt zich tijdens het gehele verkoopproces het recht voor zonder opgave van reden het verkoopproces:
1. te wijzigen;
2. onderhandelingen te beëindigen;
3. voorstellen af te wijzen;
4. te verkopen aan een ander dan degene met de hoogst voorgestelde koopsom.
Verkoper is nimmer gehouden kosten te vergoeden welke gegadigde heeft gemaakt voor, tijdens of na deelname aan het verkoopproces.
Gegadigde zal op geen enkele wijze enige informatie welke zij heeft ontvangen in het proces vermenigvuldigen en/of openbaar maken op welke wijze dan ook, zonder voorafgaande schriftelijke toestemming van PVDB.
Alle informatie dient vertrouwelijk te worden behandeld.
Alle onderhandelingen die PVDB voert met gegadigden zijn onder het uitdrukkelijke voorbehoud van goedkeuring van verkoper.
NOTARIS
Naar keuze van koper.
LEVERING
Kan spoedig.
Verkoper verklaart dat hij het verkochte gedurende de gehele periode van zijn eigendom uitsluitend heeft aangehouden als beleggingsobject en het verkochte nimmer zelf feitelijk heeft gebruikt. Aspirant koper is hiermee bekend en aanvaardt dat verkoper derhalve geen kennis heeft van het feitelijk gebruik, de staat van onderhoud en eventuele zichtbare of onzichtbare gebreken die verband houden met feitelijk gebruik. Partijen komen uitdrukkelijk overeen dat, gelet op het voorgaande, de verklaringen en garanties van verkoper uitsluitend zijn gebaseerd op de hem als belegger ter beschikking staande informatie en dat verkoper geen garanties verstrekt met betrekking tot het feitelijkgebruik, de geschiktheid voor een bepaald gebruik of de afwezigheid van (verborgen) gebreken die verkoper redelijkerwijs niet bekend konden zijn.


