Description
HET GEBOUW
Het betreft een representatieve winkelruimte gelegen op de begane grond van een karakteristiek pand aan de levendige Jan Pieter Heijestraat in Amsterdam Oud-West. Deze populaire winkelstraat staat bekend om haar diverse mix van lokale ondernemers, speciaalzaken en horeca, wat zorgt voor eenconstante stroom van voorbijgangers en een dynamische sfeer. De winkelruimte is gelegen op een uitstekende zichtlocatie, in het hart van een bruisende buurt met eensterk buurtgevoel én aantrekkingskracht op bezoekers van buiten de stad.
De Jan Pieter Heijestraat is een straat in Amsterdam-West. De straat verbindt de Overtoom met de Kinkerstraat. Halverwege kruistde straat het Jacob van Lennepkanaal.
Features
Lettable floor area
VERHUURBARE OPPERVLAKTE
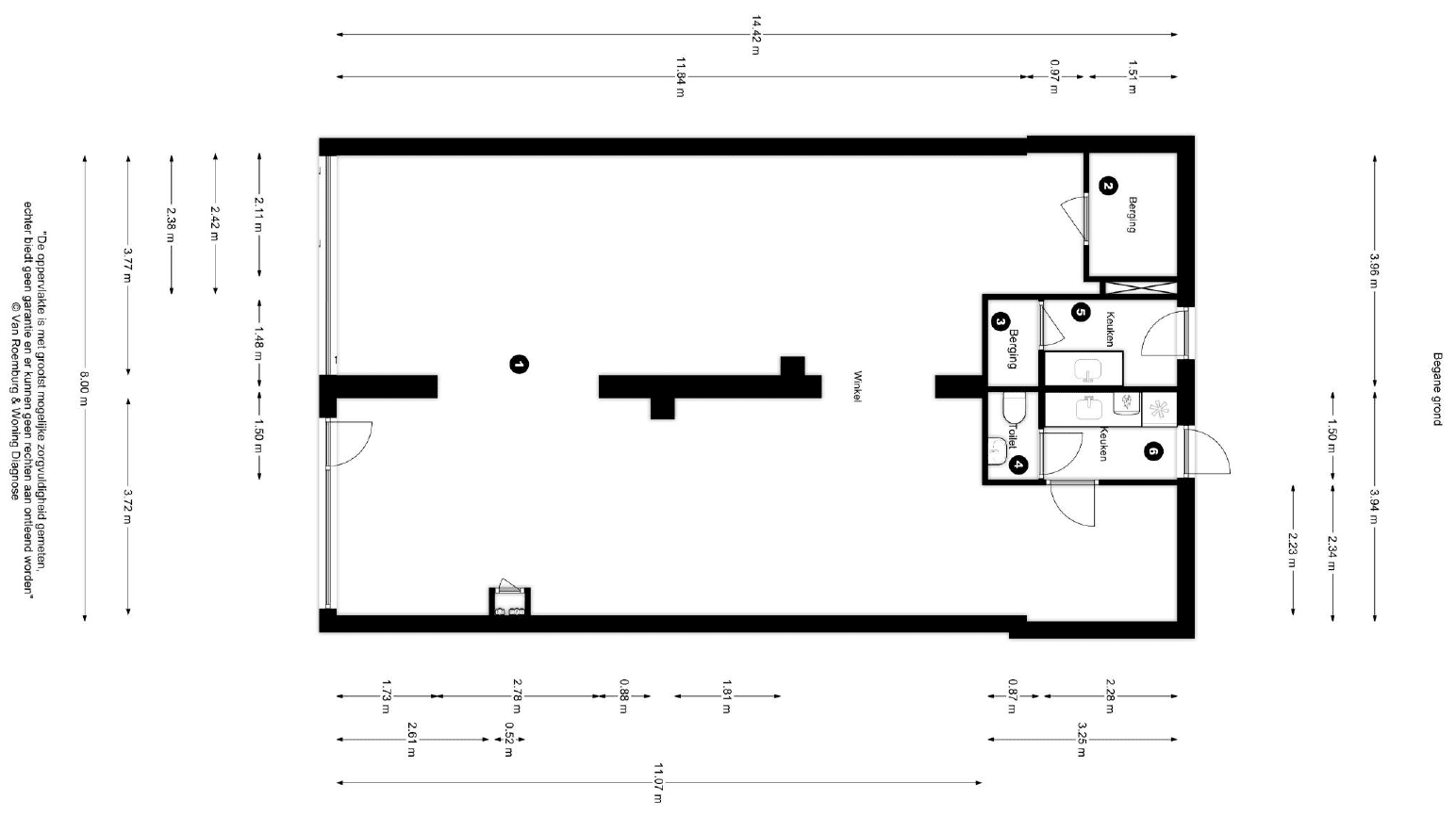
Het betreft circa 114 m² v.v.o. winkelruimte gelegen op de begane grond.
AANVANGHUURPRIJS
€ 3.300,-per maand, te vermeerderen met omzetbelasting.
SERVICEKOSTEN
P.M.
HUURINGANGSDATUM
Per direct.
Level of delivery
BESTEMMING
De publiek-/privaatrechtelijke bestemming is:
a) Detailhandel inclusief bijbehorende ondergeschikte horeca in de eerste bouwlaag, kelder en souterrain;
b) consumentverzorgende dienstverlening;
c) zakelijke dienstverlening;
ENERGIELABEL
De winkelruimte heeft een energielabel “A”.
HUURPRIJSINDEXERING
De huurprijs wordt jaarlijks geïndexeerd, voor het eerst één jaar na huuringangsdatum, op basis van het prijsindexcijfer volgens de consumentenprijsindex (CPI) reeks Alle Huishoudens (2015 = 100) gepubliceerd door het Centraal Bureau voor de Statistiek (CBS).
HUURTERMIJN
5 (vijf) jaren met een verlengingsperiode van 12 (twaalf) maanden; opzegtermijn 12 (twaalf) maanden.
ZEKERHEIDSSTELLING
Er dient een bankgarantie gesteld te worden ter grootte van een bedrag gelijk aan 3 (drie) maanden huur en servicekosten, te vermeerderen met BTW, afhankelijk van de te verkrijgen kredietinformatie.
VOORWAARDEN &CONDITIES
Er zal gewerkt worden langs de lijnen van een standaard huurcontract, zoals opgesteld door de Raad voor Onroerende Zaken (ROZ), model februari 2015.
BTW
Er zal geopteerd worden voor BTW-belaste verhuur. Huurder dient derhalve voor meer dan 90% BTW-belaste leveringen en diensten blijvend te leveren.
Accessibility
Auto
De Jan Pieter Heijestraat is goed bereikbaar met de auto via de ringweg A10, afslag S106 (Surinameplein) of S105 (Jan van Galenstraat). Via deze toegangswegen is de locatie snel en eenvoudig bereikbaar vanuit zowel Amsterdam Centrum als de omliggende stadsdelen en regio’s.
Parkeren
Parkeren is mogelijk in de directe omgeving op de openbare weg, tegen betaling. In de nabije omgeving bevinden zich tevens diverse parkeergarages, waaronder Q-Park Europarking op de Marnixstraat, op slechts enkele minuten loopafstand.
Openbaar vervoer
De locatie is uitstekend bereikbaar met het openbaar vervoer. Meerdere tramlijnen (o.a. tramlijnen 1 en 7) stoppen op loopafstand en bieden een directe verbinding met Amsterdam Centraal, Sloterdijk en andere belangrijke knooppunten in de stad. Hierdoor is de winkelruimte goed toegankelijk voor klanten en personeel.


