Panamalaan 1-8
Description
HET GEBOUW
Het gebouw is gelegen aan de Panamalaan in Amsterdam Centrum. Vlakbij liggen het Funenpark, Artis en het Tropenmuseum. Tevens zijn er verschillende restaurants, horeca, hotels en andere voorzieningen aanwezig.
Het object is ontworpen door Dedato Architecten B.V. en bestaat uit twee nagenoeg identieke gebouwen met een ondergelegen parkeergarage. Elk gebouw heeft een oppervlakte van circa 2.500 m² en een dakterras van circa 40 m².
Features
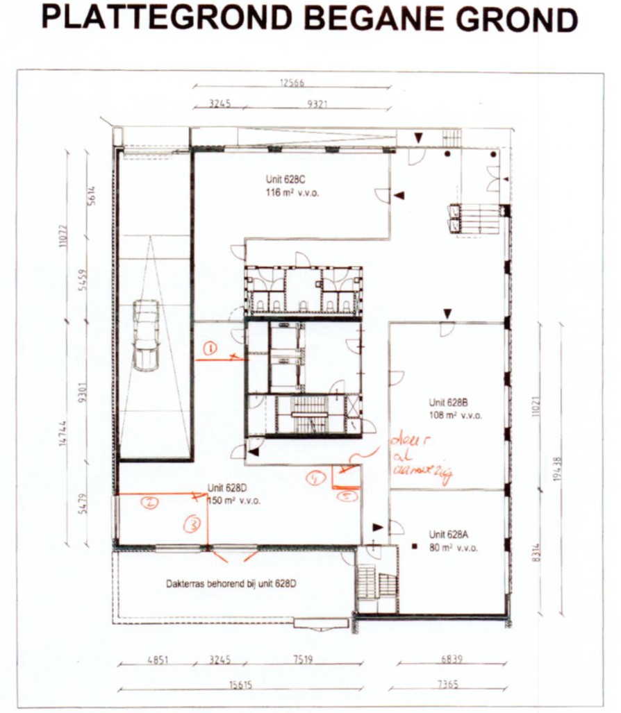
Lettable floor area
PanamaPaar Oost (nr. 2-8)
Unitnr. Metrage vvo per wanneer hp
Begane grond
2L 100,37 per direct € 175
2C 40,65 per direct € 195
2D 82,40 per direct € 175
2H 41,43 1 juni a.s. € 195
Tweede verdieping
6B 88,31 1 juli a.s. € 175
6H 138,41 1 juli a.s. € 175
PanamaPaar West (nr. 1-7)
Unitnr. Metrage vvo per wanneer hp
Begane grond
1A 70,75 per direct € 175
1B 55,39 per direct € 175
1D 40,85 1 juli € 195
1F 41,33 1 oktober a.s. € 195
1H 41,33 per direct € 195
1L 54,81 1 juni € 175
1M 66,25 1 september € 175
Eerste verdieping
3L 40,27 per direct € 195
3P 64,94 1 juni € 175
Tweede verdieping
5G 40,36 1 november € 195
5L 40,27 per direct € 195
5N 65,21 per direct € 175
5P 64,94 per direct € 175
AANVANGHUURPRIJS
Vanaf € 175,- per m² per jaar te vermeerderen met omzetbelasting en servicekosten.
De huurprijs voor een parkeerplaats bedraagt € 150,- per plek per maand, te vermeerderen met omzetbelasting.
SERVICEKOSTEN
€ 49,00 per m² per jaar, exclusief BTW. Jaarlijks wordt dit verrekend naar de werkelijk gemaakte kosten.
De leveringen en diensten bestaan onder meer uit:
• Gas, water en elektra verbruik;
• Onderhoud en periodieke controle van verwarmings- en/of luchtbehandelingsinstallatie, hydrofoorinstallatie(s), liftinstallatie(s) en brandmeldinstallatie(s);
• Schoonmaakkosten van de gemeenschappelijke ruimten, lift, beglazing buitenzijde, beglazing gemeenschappelijke ruimten;
• Kosten van eventueel noodzakelijke uitbreiding van het voorzieningenpakket;
• Administratiekosten;
• Glasherstel;
• Afvalverwijdering (voor zover hier collectief in voorzien wordt);
• OZB (onroerend zaak belasting) – het gebruikersdeel voor zover de eigenaar hiervoor de aanslag ontvangt;
• Kosten voor huismeesterdiensten;
• Kosten voor beveiliging/ alarmering.
Level of delivery
HUURINGANGSDATUM
Afhankelijk van unit.
BESTEMMING
De publiek-/privaatrechtelijke bestemming is kantoorruimte en parkeren.
OPLEVERINGSNIVEAU
In huidige staat.
HUURPRIJSINDEXERING
De huurprijs wordt jaarlijks geïndexeerd, voor het eerst één jaar na huuringangsdatum, op basis van het prijsindexcijfer volgens de consumentenprijsindex (CPI) reeks Alle Huishoudens (2015 = 100) gepubliceerd door het Centraal Bureau voor de Statistiek (CBS).
HUURTERMIJN
1 jaar met een telkenmale verlenging van 1 jaar, maar langere huurperioden zijn ook mogelijk.
ZEKERHEIDSSTELLING
Er Huurder dient een waarborgsom te stellen ter grootte van een bedrag van tenminste 3 (drie) maanden huurverplichting, inclusief het voorschot servicekosten en de daarover verschuldigde BTW.
VOORWAARDEN & CONDITIES
Er zal gewerkt worden langs de lijnen van een standaard huurcontract, zoals opgesteld door de Raad voor Onroerende Zaken (R.O.Z.), model 2003.
BTW
Er zal geopteerd worden voor BTW-belaste verhuur. Huurder dient derhalve voor meer dan 90% BTW-belaste leveringen en diensten blijvend te leveren.
Accessibility
Auto
Vanaf de ring A10 en via de IJ-tunnel of de Piet Heintunnel is het object uitstekend met de auto bereikbaar.
Parkeren
Er is 1 parkeerplaats aanwezig in de ondergelegen parkeergarage in het Oost gebouw. Tevens kan er op de openbare weg geparkeerd worden (bemeterd).
Openbaar vervoer
Nabij het object bevindt zich een tramhalte vanwaar tram 14 (Centraal Station – Flevopark) rijdt. Verderop kan men gebruik maken van buslijnen 22, 65 of 289.
Tevens ligt het NS Muiderpoort station in de nabije omgeving.


