Paulus Potterstraat 20-1
Omschrijving
HET GEBOUW
Het betreft hier circa 94 m² kantoorruimte gelegen op de eerste verdieping aan de Paulus Potterstraat. De kantoorruimte is voorzien van een stijlvolle visgraatvloer en beschikt over een eigen pantry en toiletten. Daarnaast zijn er twee balkons aanwezig, die zorgen voor een prettige buitenruimte. De zeer representatieve kantoorruimte is gelegen in Amsterdam Zuid, aan het Museumplein.
In de directe omgeving zijn diverse musea te vinden waaronder het van Gogh Museum, het Rijksmuseum en het Stedelijk Museum. Op zeer geringe afstand ligt het Concertgebouw, de luxe winkelstraat de P.C. Hooftstraat en het Vondelpark. De grachtengordel, De Pijp en het Leidseplein bevinden zich op loopafstand.
De kantoorruimte beschikt over een riante ontvangsthal. Het mooie trapportaal leidt naar de verschillende verdiepingen (per lift). De werkkamers hebben mooie uitzichten over het Museumplein alsmede de royale tuin.
Kenmerken
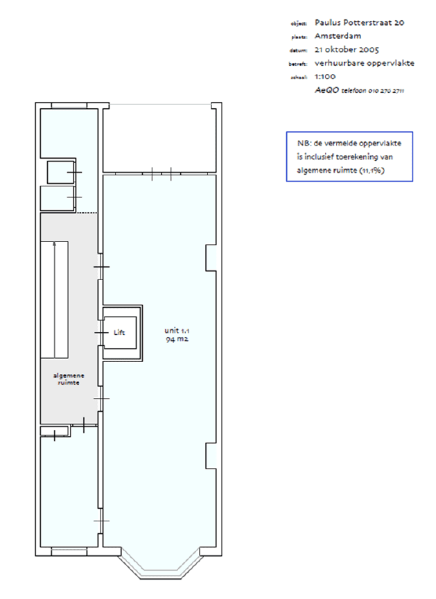
Verhuurbare oppervlakte
VERHUURBARE OPPERVLAKTE
Het betreft hier circa 94 m² v.v.o. kantoorruimte gelegen op de 1e verdieping.
AANVANGHUURPRIJS
€ 395,-per m² per jaar te vermeerderen met omzetbelasting en servicekosten.
SERVICEKOSTEN
€ 65,- per m² per jaar te vermeerderen met omzetbelasting. Voor o.a. de navolgende leveringen en diensten:
• Elektriciteitsverbruik algemene en gehuurde ruimte inclusief vastrecht;
• Gas-/ en waterverbruik inclusief vastrecht;
• Onderhoud van alle technische installatie(s);
• Schoonmaakkosten van de gemeenschappelijke ruimten;
• Onderhoud en vervanging van verlichting en noodverlichting in de algemene ruimten;
• De kosten van eventueel noodzakelijke uitbreiding van het voorzieningenpakket;
• 5% administratiekosten over de hierboven genoemde leveringen en diensten.
HUURINGANGSDATUM
Per direct.
BESTEMMING
De publiek-/privaatrechtelijke bestemming is kantoorruimte.
VOORZIENINGEN
– Verwarming;
– Airconditioning;
– Toiletgroep;
– Pantry;
– Visgraat vloer;
– Twee balkons;
– Liftinstallatie.
Opleveringsniveau
HUURPRIJSINDEXERING
De huurprijs wordt jaarlijks geïndexeerd, voor het eerst één jaar na huuringangsdatum, op basis van het prijsindexcijfer volgens de consumentenprijsindex (CPI) reeks Alle Huishoudens (2015 = 100) gepubliceerd door het Centraal Bureau voor de Statistiek (CBS).
HUURTERMIJN
5 (vijf) jaren plus een verlenging van 5 (vijf) jaren; opzegtermijn 12 maanden.
ZEKERHEIDSSTELLING
Er dient een bankgarantie gesteld te worden ter grootte van een bedrag gelijk aan 3 (drie) maanden huur en servicekosten, te vermeerderen met BTW, afhankelijk van de te verkrijgen kredietinformatie.
VOORWAARDEN &CONDITIES
Er zal gewerkt worden langs de lijnen van een standaard huurcontract, zoals opgesteld door de Raad voor Onroerende Zaken (ROZ), model februari 2015.
BTW
Er zal geopteerd worden voor BTW-belaste verhuur. Huurder dient derhalve voor meer dan 90% BTW-belaste leveringen en diensten blijvend te leveren.
Bereikbaarheid
Auto
Het object is goed bereikbaar via de ring A10, afslag S110, via de Amsteldijk, Stadhouderskadeof Van Woustraat. Op loopafstand van het object bevindt zich een taxistandplaats.
Parkeren
Betaald parkeren is mogelijk op de openbare weg of in de parkeergarage onder de Albert Heijn-supermarkt. Daarnaast kunt u gebruikmaken van de bewaakte en afgesloten Q-Park parkeergarage, schuin aan de overkant gelegen op het Museumplein.
Openbaar vervoer
Openbaar vervoer is uitstekend geregeld via tramlijnen 2, 5 en 12, deze zijn gelegen tegenover het object.


